
Zamawiający:
Biblioteka Publiczna Miasta i Gminy Pobiedziska
ul. Dworcowa 4, 62-010 Pobiedziska
Nr NIP: 7841961210
Nr Regon: 000979739
Tel. +48 618177146
Adres email: pobiedziska@bppob.pl
Adres strony Zamawiającego: https://bppob.pl/
godziny pracy: według harmonogramu na w/w stronie internetowej
wg rozdzielnika
Oznaczenie sprawy: BPPOB. ZO. 03.2024
ZAPYTANIE OFERTOWE
Biblioteka Publiczna Miasta i Gminy Pobiedziska im. Łukasza Opalińskiego zaprasza do złożenia oferty
montażu monitoringu wizyjnego w budynku Bibliostacji Pobiedziska, Dworcowa 4, zapewniającego bezpieczeństwo mienia w pomieszczeniach dostępnych dla użytkowników – powierzchnia ok 400 m
1. Opis przedmiotu zamówienia.
Przedmiotem zamówienia jest: montażu monitoringu wizyjnego w budynku Bibliostacji Pobiedziska, Dworcowa 4, zapewniającego bezpieczeństwo mienia w pomieszczeniach dostępnych dla użytkowników – powierzchnia ok 400 m.
Zamówienie obejmuje montaż rejestratorów, kamer w ilości zapewniającej bezpieczeństwo mienia i osób w przestrzeni Bibliostacji Pobiedziska.
W szczególności montaż, rejestratorów, kamer, dysku twardego 4tb, monitora przeznaczonych do pracy ciągłej, koniecznych materiałów instalacyjnych i montażowych oraz oprogramowania z konfiguracją zapewniającą stałą pracę systemu monitoringu wizyjnego wraz z gwarancją sprzętu i instalacji na 24 miesiące.
2. Termin realizacji zamówienia:
do 7 dni licząc od dnia złożenia zamówienia (zawarcia umowy). Jednak nie później niż do dnia 31 grudnia 2025.
3. Warunki udziału w postępowaniu oraz opis sposobu dokonywania oceny spełniania tych warunków – nie dotyczy.
4. Opis sposobu przygotowania oferty:
4.1. Wykaz dokumentów składających się na ofertę:
a) formularz asortymentowo – cenowy załącznik nr 1 do Zapytania.
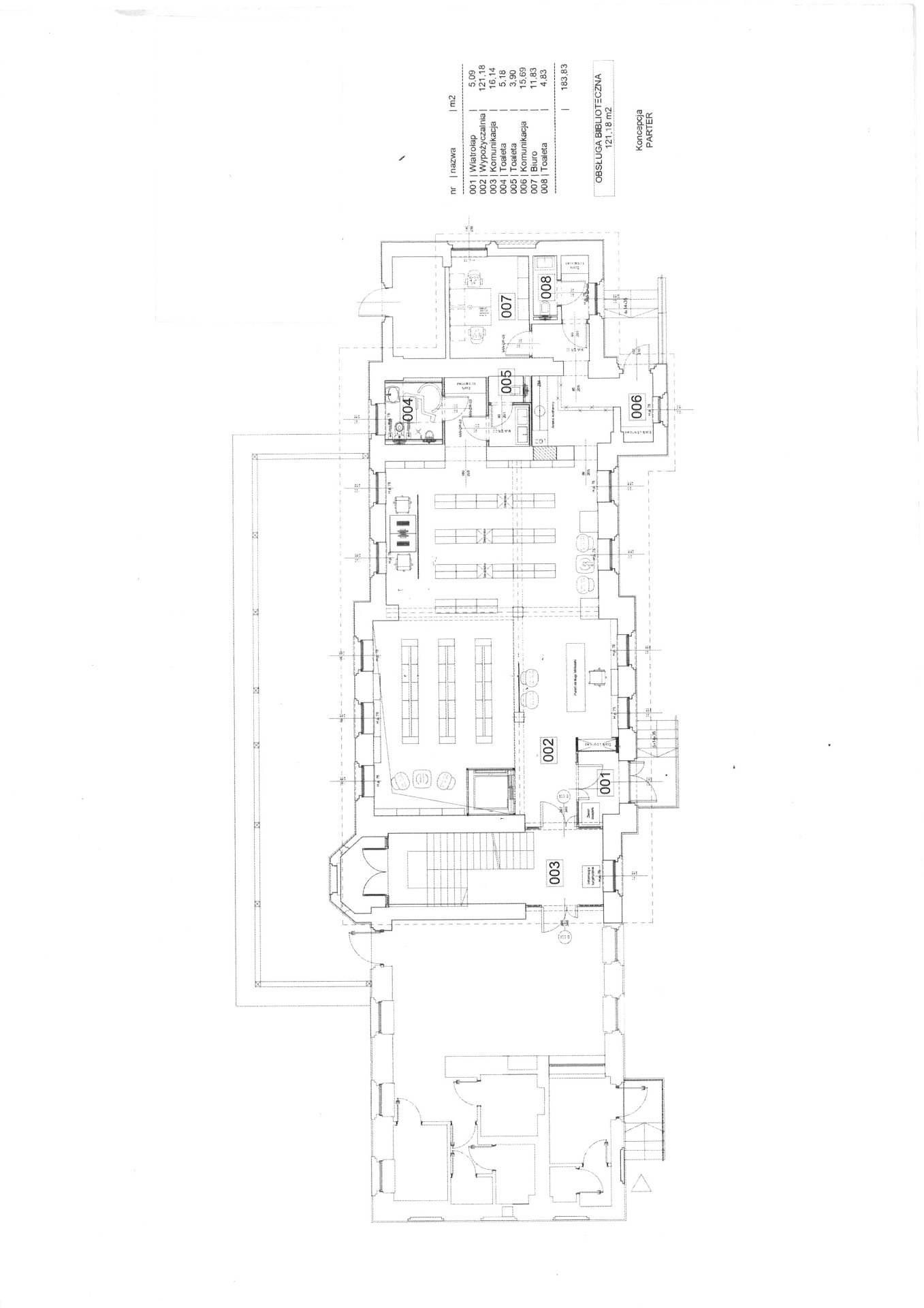
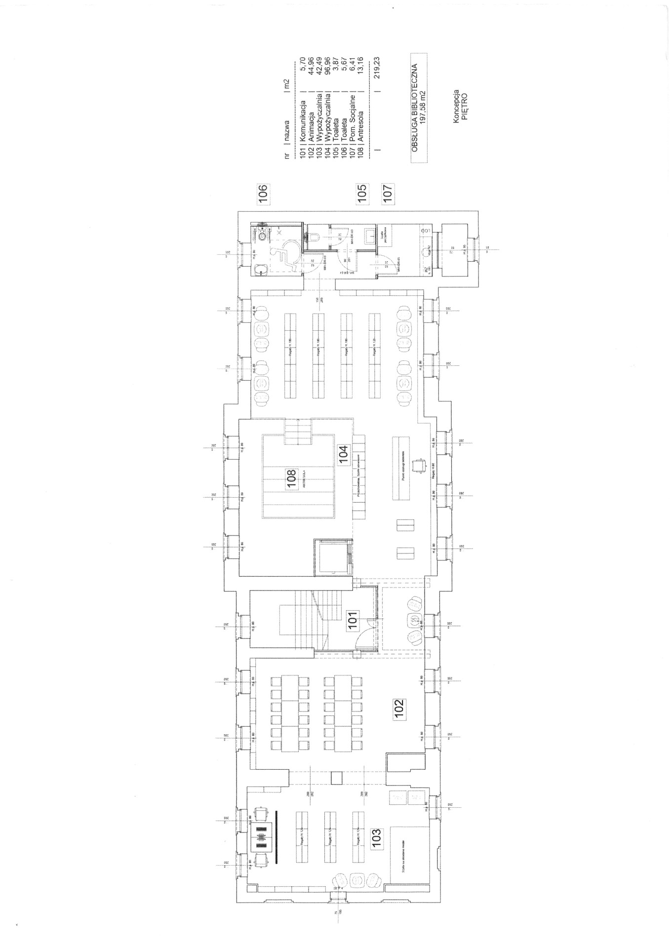
b) rzut pomieszczeń Bibliostacji Pobiedziska
4.2. Każdy Wykonawca może złożyć tylko jedną ofertę.
4.3. Oferty składa się w jednym egzemplarzu w formie papierowej lub elektronicznej*.
4.4. Wykonawca ponosi wszelkie koszty związane z przygotowaniem oferty.
4.5. Zamawiający nie przewiduje zwrotu kosztów udziału w postępowaniu.
5. Termin i miejsce składania ofert.
1. Oferty prosimy składać pisemnie:
a) w formie elektronicznej drogą elektroniczną na adres e-mail: pobiedziska@bppob.pl
lub
b) w formie papierowej na adres:
Biblioteka Publiczna Miasta i Gminy Pobiedziska, ul. Dworcowa 4, 62-010 Pobiedziska
w terminie do dnia 15 grudnia 2025 r. do godziny 12:00.
6. Informacje o sposobie porozumiewania się Zamawiającego z Wykonawcami.
Dokumenty, wnioski, zapytania oraz informacje Wykonawcy przekazują drogą elektroniczną na adres
e-mail: pobiedziska@bppob.pl.
Osobą ze strony Zamawiającego uprawnioną do porozumiewania się z Wykonawcami jest Pani Małgorzata Halber: w godzinach od 9.00 do 14.00 od poniedziałku do piątku pod nr. tel. 509 297 296,
7. Kryteria i sposobu oceny ofert.
Zamawiający wybiera ofertę najkorzystniejszą na podstawie następujących kryteriów oceny ofert:
Cena za przedmiot zamówienia: 100%
8. Tryb ogłoszenia wyników postępowania.
Niezwłocznie o wyborze najkorzystniejszej oferty Zamawiający zawiadomi Wykonawców, którzy złożyli oferty drogą elektroniczną lub telefoniczną podając imię i nazwisko Wykonawcy, którego ofertę wybrano oraz cenę.
9. Klauzula informacyjna RODO.
Administratorem Pani/Pana danych osobowych jest Biblioteka Publiczna Miasta i Gminy Pobiedziska z siedzibą w Pobiedziskach, ul. Dworcowa 4, tel. 61 669 8321 ]. Kontakt z Inspektorem Ochrony Danych w Bibliotece Publicznej Miasta i Gminy Pobiedziska możliwy jest pod adresem email:iodo@bppob.pl. Dane przetwarzane są w oparciu o przepisy prawa oraz w celu realizacji zadań w interesie publicznym. Szczegółowe informacje na temat przetwarzania danych osobowych znajdują
się pod adresem: https://bppob.bipstrona.pl/cms/14519/rodo.
10. Termin związania z ofertą.
Wykonawcy pozostają związani ofertą przez okres 14 dni od ostatecznego upływu terminu do składania ofert.
Zamawiający informuje, iż do wyboru oferty najkorzystniejszej nie mają zastosowania przepisy ustawy Prawo zamówień publicznych. Zamawiający zastrzega sobie prawo przeprowadzenia negocjacji, w szczególności w sytuacji, gdy cen oferty najkorzystniejszej przewyższa kwotę jaką zamawiający zamierzał przeznaczyć na sfinansowanie zamówienia.
Załączniki:
Nr 1 – formularz asortymentowo – cenowy
Nr 2 – rzut wnętrza Bibliostacji Pobiedziska
Realizacja: IDcom.pl
Wszelkie prawa zastrzeżone © 2026