
ZAPYTANIE OFERTOWE : ZO/BPP0b/002/2025 z dn. 17.03. 2025
Biblioteka Publiczna Miasta i Gminy Pobiedziska im. Łukasza Opalińskiego zwraca się z prośbą o przedstawienie oferty na wykonania planów tyflograficznych – parteru i piętra Bibliostacji Pobiedziska oraz tabliczek informacyjnych.
1. Przedmiot zamówienia:
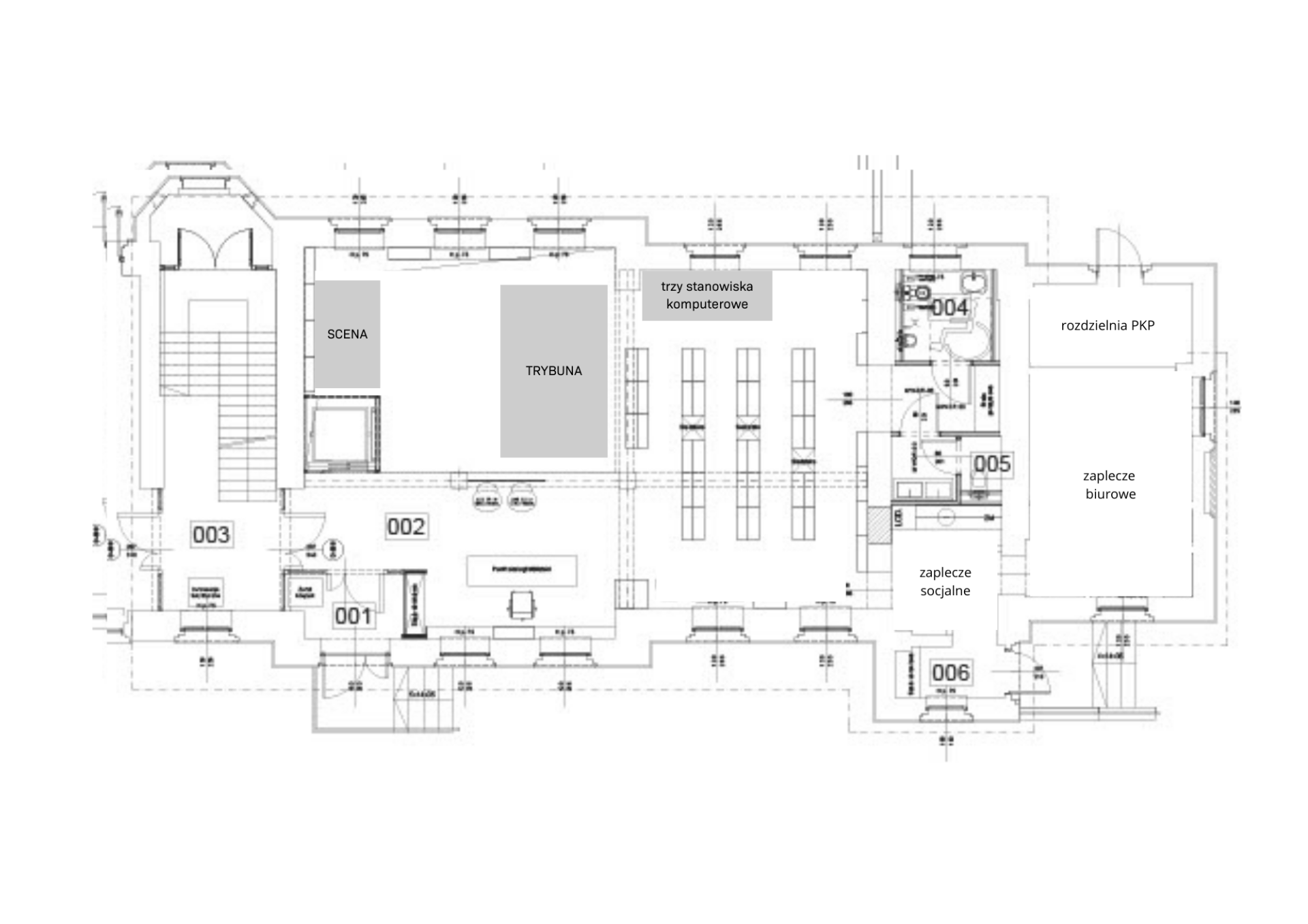
Przedmiotem zamówienia jest wykonanie, dostawa i montaż tablic, planów tyflograficznych parteru i piętra Bibliostacji Pobiedziska, ul. Dworcowa 4, 62-010 Pobiedziska, zgodnych z wymaganiami Zamawiającego ujętymi poniżej i normami prawnymi.
· Tablica tyflograficzna odzwierciedlająca układ pomieszczeń w Bibliostacji Pobiedziska – parter w formacie A-3
· Tablica tyflograficzna odzwierciedlająca układ pomieszczeń w Bibliostacji Pobiedziska – piętro w formacie A-3
· Tabliczek informacyjnych (do przyklejenia na drzwi i poręcze schodów.
oraz
· Transport i montaż tablic i oznaczeń w budynku Biblioteki, Dworcowa 4, 62-010 Pobiedziska
2. Wymagania wobec Wykonawcy:
· Doświadczenie w świadczeniu w wykonywaniu tablic i oznaczeń tyflograficznych w obiektach publicznych ,
· Referencje
3. Kryteria oceny ofert:
· Cena (70%),
· Doświadczenie i referencje (15%),
· Gwarancja minimum 36 miesięcy (15%)
4. Cena
Oferent podaje w ofercie cenę wykonania zamówienia netto/brutto w rozbiciu na poszczególne elementy ujęte w zapytaniu ofertowym.
5. Termin i sposób składania ofert:
Oferty prosimy przesyłać w formie pisemnej lub elektronicznej do dnia 24.03.2025 na załączonym formularzu , do godz. 12.00 na adres: Biblioteka Publiczna Miasta i Gminy Pobiedziska, ul. Dworcowa 4, 62-010 Pobiedziska lub E-mail: pobiedziska@bppob.pl W razie pytań prosimy o kontakt z dyrektor Biblioteki pod numerem telefonu: 509 297 296
6. Termin wykonania:
30 dni od podpisania umowy z oferentem, który przedstawi najkorzystniejszą ofertę.
7. Załączniki:
Oferta zawiera załączniki w postaci planów piętra i parteru i formularza ofertowego.
8. Dodatkowe informacje:
Zamawiający zastrzega sobie prawo do unieważnienia postępowania bez podania przyczyny oraz do negocjacji warunków umowy z wybranym Wykonawcą.
Małgorzata Halber
Dyrektor Biblioteki Publicznej Miasta i Gminy Pobiedziska im. Łukasza Opalińskiego
Realizacja: IDcom.pl
Wszelkie prawa zastrzeżone © 2026